ARKONA VOILE > 65' > 85' > 100' > 130' ARKONA MOTEUR > 78' > 105'
KOMUNDO > 65' > 85'
MONTARA > 105' > 111' KEREON > 47' > 57' > 77' Fly Fermé > 77' Propriétaire
CAP CARBON > 57' > 65'
COVE ISLAND > 57' > 57' Plongée > 77' > 95'
> English > Espanol > Retour Accueil
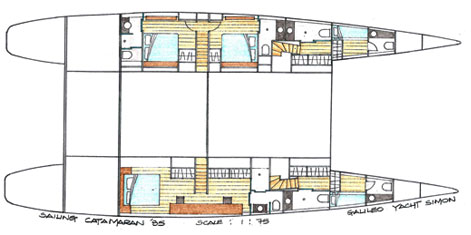
Komundo / 85'
> Présentation > Spécifications > Aménagements > Vues > Télécharger la fiche > Origine du nom
Vous êtes ici : catamaran voile / komundo 85' / aménagements
Profil | Pont supérieur | Pont principal | Coques