ARKONA VOILE > 65' > 85' > 100' > 130' ARKONA MOTEUR > 78' > 105'
KOMUNDO > 65' > 85'
MONTARA > 105' > 111' KEREON > 47' > 57' > 77' Fly Fermé > 77' Propriétaire
CAP CARBON > 57' > 65'
COVE ISLAND > 57' > 57' Plongée > 77' > 95'
> English > Espanol > Retour Accueil
Cap Carbon/ 57'
> Présentation > Spécifications > Aménagements > Vues > Télécharger la fiche > Origine du nom
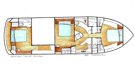
Vous êtes ici : monocoque moteur / cap carbon 57' / aménagements
Profil | Profil Version flybridge | Vue extérieure | Pont superieur version flybridge | Pont principal 1 | Pont principal 2 Pont inférieur 1 | Pont inférieur 2